Landships II

Members Login
Username 
 
Password 
    Remember Me  
Post Info TOPIC: Estienne's Original Proposal


Legend

Status: Offline
Posts: 3907
Date:
Estienne's Original Proposal
Permalink   


Have just been having a ponder over Estienne's original idea and his amendments to Lt. Thibier's drawing of the Holt track assembly (Fig. 1). Don't know anything about Thibier, but he seems to have been a draughtsman, whereas E clearly wasn't. This might be very old news, but it suddenly struck me that the canoe-like object at the top of the drawing is the same length as E's sketch of the body. It must be Thibier's improvement to E's handiwork (which would have had all the problems of the St. Chamond). If that's the case, then the vehicle would have looked as shown in Fig. 2. I've tinkered with it and come up with the best I can in Paint. Someone with a better graphics suite could do a much better job. The other little sketch by E suggests that the front might have been a chisel-edge. I think the Holt's wheelbase was about 6 feet, which ties in with E's suggested dimensions - it would have been only 1.6m high, about 5'6". The body appears to have had a sort of cockpit for the crew or possibly a turret. Does this make sense? Am I a clever boy, or does everyone know this already?

-- Edited by James H on Sunday 27th of December 2009 08:06:54 PM

Attachments
__________________

"Sometimes things that are not true are included in Wikipedia. While at first glance that may appear like a very great problem for Wikipedia, in reality is it not. In fact, it's a good thing." - Wikipedia.



Major

Status: Offline
Posts: 105
Date:
Permalink   

Interesting.

I've never seen this, but it looks like the top drawing in figure 1 has a track outline behind it. Perhaps they were thinking of extending the tracks to fit the hull better (no overhang) and the cigar shaped outline is protective armor????

I really don't know for sure.

Cheers!

Ron

__________________
Poniatowski


Legend

Status: Offline
Posts: 3907
Date:
Permalink   

Well, so it does. I thought the things arrowed in this pic were St. Chamond type rollers, but it now looks as if that might have been Estienne's suggestion for the axles on a lengthened track assembly, and the drawing at the top of the plan must be Thibier's depiction of the idea. That would mean that the track would protrude beyond the hull, as in the British tanks, and far better than the Schneider and St. Chamond, although it looks as if ground clearance wouldn't have been much. The V-shaped thing must be the avant-nez, for wire-cutting.

Estienne's proposed measurements were 4m (13ft) long x 2.6m (8'6") wide. I'll have a further study and see if I can come up with what the lengthened vehicle might have looked like.

Much obliged, Ron.

Attachments
__________________

"Sometimes things that are not true are included in Wikipedia. While at first glance that may appear like a very great problem for Wikipedia, in reality is it not. In fact, it's a good thing." - Wikipedia.



Major

Status: Offline
Posts: 105
Date:
Permalink   

You're welcome. Just an observation, might be totally wrong so keep an open mind!

Cheers!

Ron

__________________
Poniatowski


Field Marshal

Status: Offline
Posts: 466
Date:
Permalink   

Bonjour James,

I am very sorry, but my english is not enough good for a very good answer in your language. . . .

Perhaps you can translate it for the other forum's members . . . .

Michel

"Il ne faut pas prendre ce dessin comme la base réelle du char proposé par Estienne. Les dimensions n'ont, en soit, que peu d'importance, et on peut voir que le chassis holt dessiné ne comprend qu'un chariot. Le Holt et le Baby Holt avait un double chariot.

Le lieutenant Thibier était probablement un officier d'état-major du Colonel Estienne mieux à même de dessiner cette ébauche de projet que le Colonel Estienne.

Ce dessin, signé à la date du 11 Décembre 1915 par le Colonel Estienne, a probablement été réalisé comme support pédagogique à l'exposé fait le 12 Décembre 1915 au GQG de Chantilly.

Ce jour-là, le Colonel Estienne a développé dans le détail son projet au Général Janin. Il est vraisemblable que les coups de crayon et les ratures ont été faites pendant cet exposé au général, en réponse à des questions soulevées par cette présentation.

Le vrai projet de char s'est mis en place après les entrevues Estienne/Brillié du 20 Décembre 1915 et des jours suivants. Les idées d'Estienne et le projet de "Mitrailleuse chenillée" de la société Schneider se sont alors télescopés.

Le train de roulement, le bec avant et les patins arrières sont les idées développées par la société Schneider. Le Colonel Estienne a apporté un système d'arme cohérent à installer sur un chassis.

La force du Colonel Estienne a été d'imposer son idée à l'Etat-Major français : mettre une pièce d'artillerie et des mitrailleuses sur un engin chenillé et blindé.

A cette date, la société Schneider, qui avait acheté les brevets Holt, travaillait simplement sur le concept d'une mitrailleuse chenillée.

La commande de 10 mitrailleuses chenillées, passée alors par le Ministère de la Guerre, montre bien que pas un seul officier français n'avait encore été capable d'aller au delà de cette idée."



__________________


Legend

Status: Offline
Posts: 3907
Date:
Permalink   

You apologise too much, Michel. Thanks for the info.

This drawing should not be taken as the actual basis of the Tank proposed by Estienne. The dimensions are only approximate, and it can be seen that the Holt chassis as drawn has only one bogie. The Holt and Baby Holt had two bogies (in tandem)*. Lt. Thibier was probably an officer on Estienne's staff who was better qualified to do the sketch of the idea than Estienne. This drawing, signed and dated 11th December 1915 by Estienne, was probably made as a formal illustration to accompany Estienne's description to GHQ at Chantilly on the 12th, when he explained it in detail to Gen. Janin. It seems likely that the pencil lines and crossings-out were done during the discussion with the General in response to questions that arose. The actual Tank project got under way after the meeting between Estienne and Brillié on December 20th and thereafter. Estienne's ideas and Schneider's "tracked machine-gun vehicle" thus became merged. The track assembly, the (wire-cutting) "beak", and the rear "skids" were Schneider's ideas; Estienne's contribution was the armament and its disposition on the chassis. Estienne's pivotal role was to convince the Staff of the value of the idea of mounting a gun as well as mgs on a tracked armoured vehicle. At the time, Schneider (who had purchased the Holt patent) were working on the idea of a vehicle with mgs only. The order from the Minister of War for 10 such vehicles shows that there was still not a single French officer with an idea anything like Estienne's.

* I would argue with that. I think the Baby had 2 bogies (3+2 rollers) but the 75 only one.

However, as Ron has pointed out, the drawing of what looks like a chassis does seem to have a lengthened track system around it, and it looks like Thibier's work. It must have been something like an aircraft fuselage, and if the height was only 1.6m the body must have been slung quite low between the tracks.  The scale looks to be the same as the Holt track, so I've doodled what it might have looked like. It looks as if the transmission was intended to be mounted at the rear (arrowed). I can't find the exact dimensions of the Holt 75 track assembly, but that would give us a better idea. I know they were probably only speculating, but it's possible to work out what it might have looked like. Hard to work out where the armament would have gone.

Jeudy says that Thibier's drawing of the Holt track shows the 75's front wheel, but I can't see it. I think he's confused it with what might be a cockpit arrangement on the plan view in the bottom right hand of the drawing.

I stand corrected. The drawing gives axle height of the Holt as 60cm, so height to top of track 1.2m, just under 4 feet.

-- Edited by James H on Tuesday 29th of December 2009 05:57:01 PM

Attachments
__________________

"Sometimes things that are not true are included in Wikipedia. While at first glance that may appear like a very great problem for Wikipedia, in reality is it not. In fact, it's a good thing." - Wikipedia.



Legend

Status: Offline
Posts: 3907
Date:
Permalink   

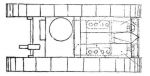
I think that I might have sussed this (with the help of my uncle, who's a draughtsman).

It was a plan view of the Ford 2-Man that was a clue. It struck me that it looks very similar to the plan view at bottom right in M Thibier's drawing. His original idea must have been just a general outline of a box structure sitting between Holt tracks, rather like the Ford. Estienne seems to have added the larger box (in pink) with the added wheels or rollers front and rear to assist in crossing trenches, ditches, etc. I suspect that he also added the green line to illustrate how the attachments would work. The little drawing of a wedge-shape above it must be his first suggestion of shaping the bow like that of a ship.

The top diagram (in red) isn't, I don't think, a chassis suspended between tracks. I think it's meant to show some sort of armoured skirt to provide protection for the track and suspension gear.

Unfortunately I've only got printed copies of the plans so I can't read the dimensions, even with a magnifying glass. If they can be read on the original or a better copy they would tell us what Thibier initially envisaged.

Attachments
__________________

"Sometimes things that are not true are included in Wikipedia. While at first glance that may appear like a very great problem for Wikipedia, in reality is it not. In fact, it's a good thing." - Wikipedia.

Page 1 of 1  sorted by
 
Quick Reply

Please log in to post quick replies.

Tweet this page Post to Digg Post to Del.icio.us


Create your own FREE Forum
Report Abuse
Powered by ActiveBoard