Landships II

Members Login
Username 
 
Password 
    Remember Me  
Post Info TOPIC: German 9cm Kanone Limbers for the C/73/88 and C/73/91


General

Status: Offline
Posts: 320
Date:
German 9cm Kanone Limbers for the C/73/88 and C/73/91
Permalink   


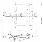
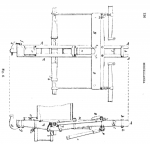
I have been trying to understand the differences between the original 9cm C/73 Limber and the alterations made in the C/73/88 and possibly the C/73/91 patterns.  The old C/73 has a box lid that opens from the top.  The C/73/88 and C/73/91 have completely different boxes from the old model, that open from the back. The old C/73 also has simple bar stock arm rest, whereas the two newer models have armrest covered over in sheet metal.  I have very good drawings of the old C/73 from the top and side.  The underframe for this limber is made of two straight metal beams.  My current interpretation of how this limber evolved is that the frame remained the same and only the box changed.    I have attached the images I have.  

Any other images of these Limber (Protze) types?  

 



Attachments
__________________
Ralph Lovett


General

Status: Offline
Posts: 320
Date:
Permalink   

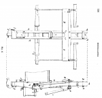
So, a bit of new information.  The 9cm Kanone C/73/88 Limber frame was altered from the C/73.  I have attached a drawing of the C/73/88 Limber frame provided by M.C. Hunis



Attachments
__________________
Ralph Lovett
Page 1 of 1  sorted by
 
Quick Reply

Please log in to post quick replies.

Tweet this page Post to Digg Post to Del.icio.us


Create your own FREE Forum
Report Abuse
Powered by ActiveBoard